Small UK Bedroom Layouts: Use An AI Planner To Fit Bed, Wardrobe & Storage Spring 2026
Got a box room that feels more like a cupboard than a bedroom? You are not alone. New‑build homes, terraces, and small flats across the UK often have tiny bedrooms with chimneys, awkward alcoves and radiators in exactly the wrong place.
Visualise your room and discover furniture that matches your style, space, and lifestyle. With our free AI layout planner
Upload your room, define your style and lifestyle needs, and instantly get AI-matched furniture ideas with a tailored moodboard.
The good news is that a small bedroom layout UK problem is mostly a planning problem. With an AI room planner, you can test bed, wardrobe and storage positions in minutes, without dragging heavy furniture around or drilling a single hole.
Find Bedroom Furniture
Why Small UK Bedroom Layouts Feel So Awkward
Most small UK bedrooms sit somewhere around 2 metres to 2.5 metres wide and 3 metres to 3.5 metres long. Once you put in a bed, door swing and a radiator under the window, there is not much floor left.
Common headaches:
- Chimney breasts that steal wall space and leave narrow alcoves.
- Windows and radiators on the same short wall, which limit where the bed can go.
- Doors that open into the room, clipping the corner of wardrobes or beds.
- No built‑in storage, so everything has to be freestanding.
If you have ever typed “small bedroom layout uk” into Google, you will have seen how many people face the same issue.
What An AI Bedroom Planner Can Do For You
An AI planner takes your room measurements, then helps you test hundreds of layouts on screen. It is like playing Tetris with your actual furniture.
- Draw your room to scale, including alcoves and chimney breasts.
- Add doors, windows and radiators in their real positions.
- Drop in a bed, wardrobe, chest of drawers and bedside tables in standard UK sizes.
- Try the bed against the wall, centred under the window or tucked into an alcove.
- See instantly whether you still have 60 centimetres of walking space where you need it.
You can screenshot different options, compare them side by side, and only move the real furniture when you are confident.
Step‑By‑Step: Planning Your Small Bedroom Layout
A planner is powerful, but your decisions still matter. This simple process works well for most small UK bedrooms and box rooms.
1. Measure everything properly
Grab a tape measure and note:
- Room length and width in metres and centimetres.
- Position and width of the door, including how it swings.
- Window width, height from floor, and whether it opens inwards.
- Radiator size and position.
- Depth and width of any alcoves or chimney breasts.
Mark these as fixed points when you set up the AI planner. This stops you designing a layout that looks great on screen but blocks a window or door in real life.
2. Decide your minimum bed size
For adults, a small double is often the best balance between comfort and space:
- Standard double: 135 cm wide by 190 cm long.
- Small double: 120 cm wide by 190 cm long.
- Single: 90 cm wide by 190 cm long.
Aim for at least 60 cm of clear space at the sides you plan to use as walkways (70 cm feels generous). At the foot of the bed, 60 cm is a minimum clearance so you can pass comfortably.
In the planner, drag the bed around and watch those clearances. Move it:
- Centred on the main wall.
- Pushed to one side for a “daybed” feel.
- Under the window if the sill is high and the radiator is not in the way.
3. Add wardrobe and main storage
Next, place your wardrobe and biggest storage pieces.
Typical UK wardrobe depths are 50 to 60 cm. If you have alcoves beside a chimney breast, that is often the perfect spot. In the planner, test:
- A full‑height wardrobe filling the alcove.
- A shallower wardrobe plus wall shelves above.
- Splitting storage into a narrow wardrobe plus a tall chest of drawers.
Remember to keep at least 60 cm in front of wardrobe doors so you can open them fully. If that is tight, consider sliding doors.
4. Layer in under‑bed and over‑bed storage
AI planners make it easy to see how much storage you can squeeze in without crowding the room.
Try these options on screen:
- Ottoman or divan beds with lift‑up bases for bulky items.
- Under‑bed drawers on the side with more space.
- Over‑bed cupboards to frame the bed, as long as the ceiling is high enough.
- Wall shelves instead of a second bedside table.
If you rent, stick to beds with built‑in drawers or simple under‑bed boxes, and use removable wall hooks for bedside storage caddies.
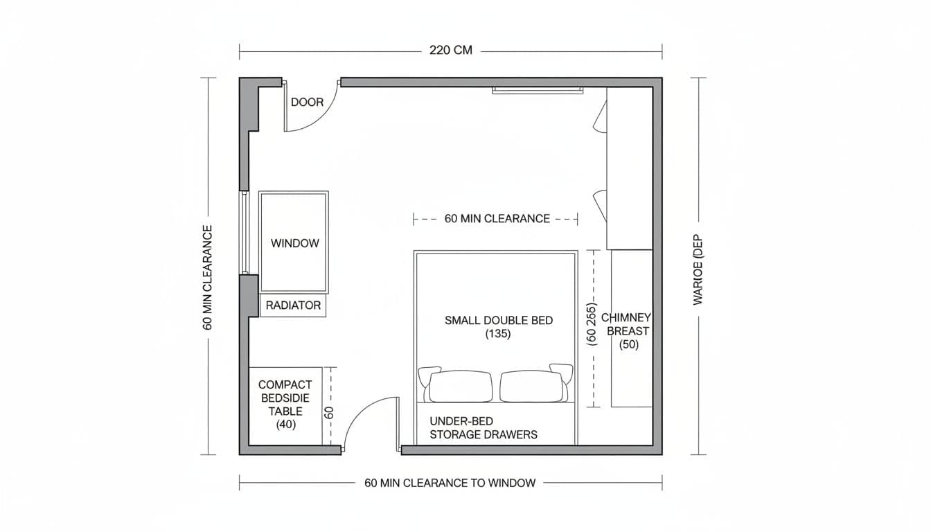
Example Layout: 2.2m x 3.2m Small UK Box Room

Image: Example layout of a 2.2 m by 3.2 m UK box room with a small double bed, wardrobe in an alcove, and under‑bed storage. Image created with AI.
In this example, the room is 2.2 metres wide and 3.2 metres long. The AI layout shows:
- A 135 cm small double against the long wall opposite the door.
- A slim 50 cm deep wardrobe tucked into an alcove beside the chimney breast.
- A compact 40 cm deep bedside table on the free side of the bed.
- A radiator under the window on the short wall.
- At least 60 cm of walking space around the bed and to the window.
This type of plan is easy to recreate in an AI room planner. You can then adjust it for a single bed, add a desk instead of a bedside table, or rotate the bed to test how it feels on the window wall.
Key dimensions from the example
ItemSuggested sizeNotesBed (small double)135 cm x 190 cmAgainst long wallWardrobe depth50 cmFitted into alcove beside chimney breastBedside table depth40 cmOn main access sideWalking clearanceMinimum 60 cmAround bed and to window/radiator
Use this as a starting point, then tweak to match your own room.
Space‑Saving Furniture Ideas That Actually Work
Once your layout is sorted, the right furniture makes a small room feel calmer and less cramped. For more visual ideas.
Useful options for small UK bedrooms:
- Ottoman or gas‑lift beds for bedding, suitcases and off‑season clothes.
- Narrow bedside tables (30 to 35 cm wide) or even a wall shelf instead.
- Tall wardrobes that go close to the ceiling, with extra boxes on top.
- Space‑saving beds for kids, like high sleepers with desks or storage beneath.
For renters, pick pieces that do not need fixing to walls, such as ladder shelves, freestanding clothes rails and drawer units on wheels.
Simple Tricks To Make A Small Bedroom Feel Bigger
Even the best layout can feel heavy if the room looks cluttered. These styling tweaks help:
- Keep walls light and neutral, then add colour with bedding and cushions.
- Use a low headboard so more wall shows above the bed.
- Choose mirrored or light‑coloured wardrobe doors to bounce light around.
- Hang curtains a little higher and wider than the window to stretch the wall.
- Use two or three light sources, for example a ceiling light, bedside lamp and a small wall light.
Small changes add up. You want the floor as clear as possible and storage working hard.
Final Thoughts: Let AI Take The Strain
A tiny UK bedroom will never feel like a suite, but it can feel calm, organised and comfortable. An AI planner lets you test bed, wardrobe and storage layouts in minutes, then commit to the one that gives you the most usable space and the least daily frustration.
Shop Bedroom Furniture

Shop for Furniture for your Home from Verified UK Retailers
Furniture for your Home Sofas Sofa Beds
Bedroom Furniture Beds & Mattresses
Shop for Furniture for your Garden, storage and Garden Rooms
Garden Furniture Garden Storage Gas BBQ’s Outdoor Kitchen Garden Decor Gardening Supplies
Garden Sheds Prefab Garden Rooms Garden Rooms with UK Installation
Pergolas Gazebo Greenhouse Canopies Awnings Conservatories
–
Explore More Expert Buyers Guides & Money Saving Tips
For a list of our main buyers guides use the drop-down menu at the top of the page. Topics related to this article are:
Home and Garden Furniture Buyers Guides
Bedroom Furniture Buyers Guides
living Room Furniture Buyers Guides
Garden Furniture Buyers Guides
–
Explore Our Blog Categories for Expert Buying Advice
https://comparepriceswebsite.co.uk/index.php/2025/12/16/free-ai-small-bedroom-layout-tool/
Comments
Post a Comment